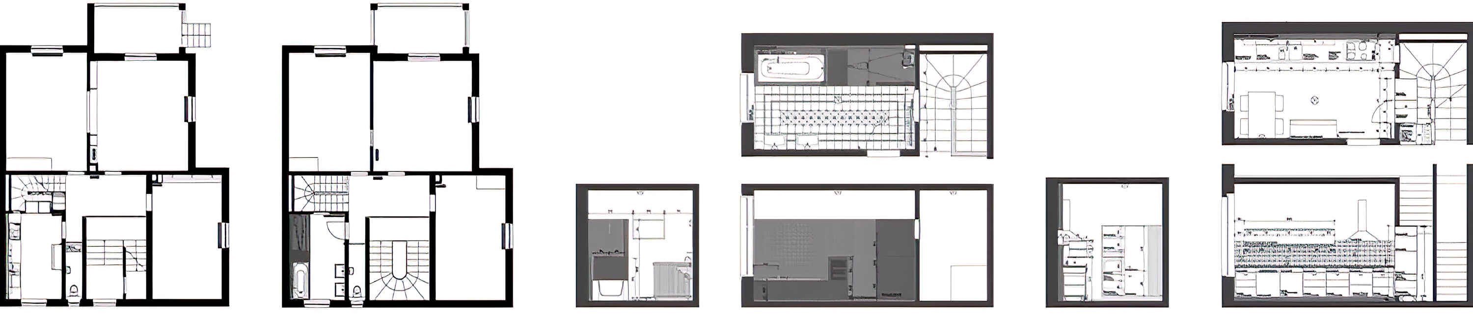
Die vier zusammengebauten Mehrfamilienhäuser mit geknicktem Walmdach aus dem Jahre 1899 befinden sich am Bürkiweg im Berner Beaumont-Quartier. Das neu umgebaute Haus ist das Eckhaus und verfügt daher über eine besonders schöne Belichtung und Besonnung. ... Ursprünglich befanden sich in dem Haus drei grosse 3 Zimmer Wohnungen mit jeweils einer Küche und einem Bad. Durch den Umbau wurde das Erdgeschoss mit dem 1. Obergeschoss zu einer grosszügigen 6 Zimmer Wohnung zusammengelegt. Die neue Küche liegt im Erdgeschoss und das Badezimmer neu anstelle der alten Küche im 1. Obergeschoss. Die beiden alten Badezimmer werden neu als Treppenraum genutzt. Eine leicht gewendelte Holztreppe führt zum 2. Obergeschoss. Im Erdgeschoss wurden die beiden Wohnräume mittels eines grossen Durchgangs verbunden. Zum Wohnzimmer hin wurde die ganze Wand mit Bücherregalen ausgekleidet. Alle weiteren Räume und das äussere wurden restauriert.
| Standort | Bürkiweg, Bern |
|---|---|
| Bauherrschaft | privat |
| Architektur | Madeleine Lambert, Zürich |
| Bauleitung | Heinz Brügger, Spiez |
| Bauzeit | August – Dezember 2000 |
| Bauvolumen | 1000 m³ |
